Architectural Portfolio

« Welcome to our architectural portfolio, explore our diverse collection, continuously redefining the standards of architectural design. »

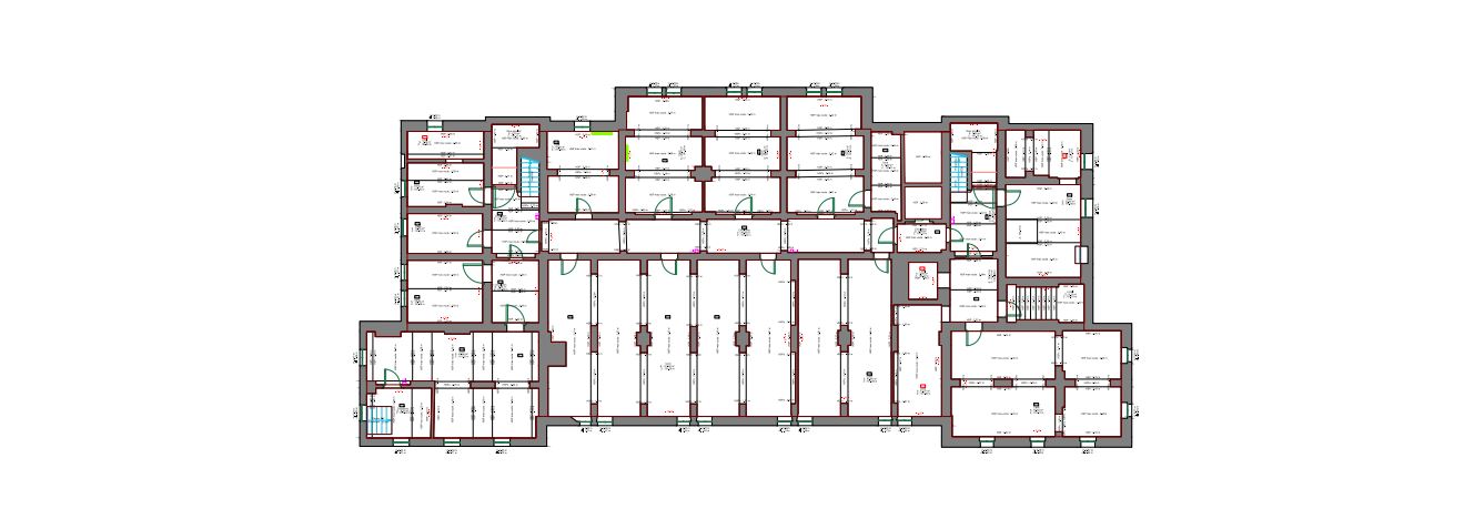
2D & 3D Plan

  • Facade
  • Interior
  • Mass
  • Presentation Sheet
  • Equipment

MEP

  • Sleeve
  • Duct
  • Pipeline

3D Rendering

  • 3D Animation
  • Exterior
  • Interior
  • 3D Section

Equipment

  • Sanitary
  • SSI
  • Real Estate
  • Electricity

Interior

Interior 1
Interior 2

Exterior

Exterior 1
Exterior 2

3D Model

2D Plan

Facade

Facade

Interior

Interior

Site Plan

Site Plan

Any questions?

Our team is available just for you 😉

Contact us

Contact Information

Address:
Lot VL 19 A ter DG,
Rue Ramilijaona,
Antananarivo 101, Madagascar

Email: contact@buildongroup.com
Phone: +261 32 87 848 87